De Sleutel 3 te Eindhoven, gerenoveerde bedrijfsunit met kantoorruimte op bedrijventerrein De Hurk!
Beschrijving
Locatie
Deze te huur aangeboden gerenoveerde bedrijfsunit met kantoorruimte en parkeren aan De Sleutel 3 te Eindhoven, is gelegen op Bedrijvenpark "De Sleutel" op het gewilde Bedrijventerrein De Hurk. Dit bedrijfspand is recent grotendeels gerenoveerd waarmee het opleverniveau van een hoge kwaliteit zal zijn. Bedrijventerrein De Hurk kenmerkt zich door de grote verscheidenheid aan bedrijven in zowel lagere als hogere milieucategorieën. In de directe omgeving zijn onder andere gevestigd; VDL, Copaco, Drukkerij Snep, Rijschool Dekker het het CBR.
Bereikbaarheid
Bedrijventerrein De Hurk te Eindhoven is direct gelegen (middels 3 op- en afritten) aan de A2/N2, nabij de A67, A50 en de A58 en tevens aan de rondweg van Eindhoven. Middels diverse buslijnen en HOV-halte is het terrein ook met openbaar vervoer goed te bereiken vanaf Centraal Station Eindhoven, Eindhoven Airport en Veldhoven.
OBJECTGEGEVENS
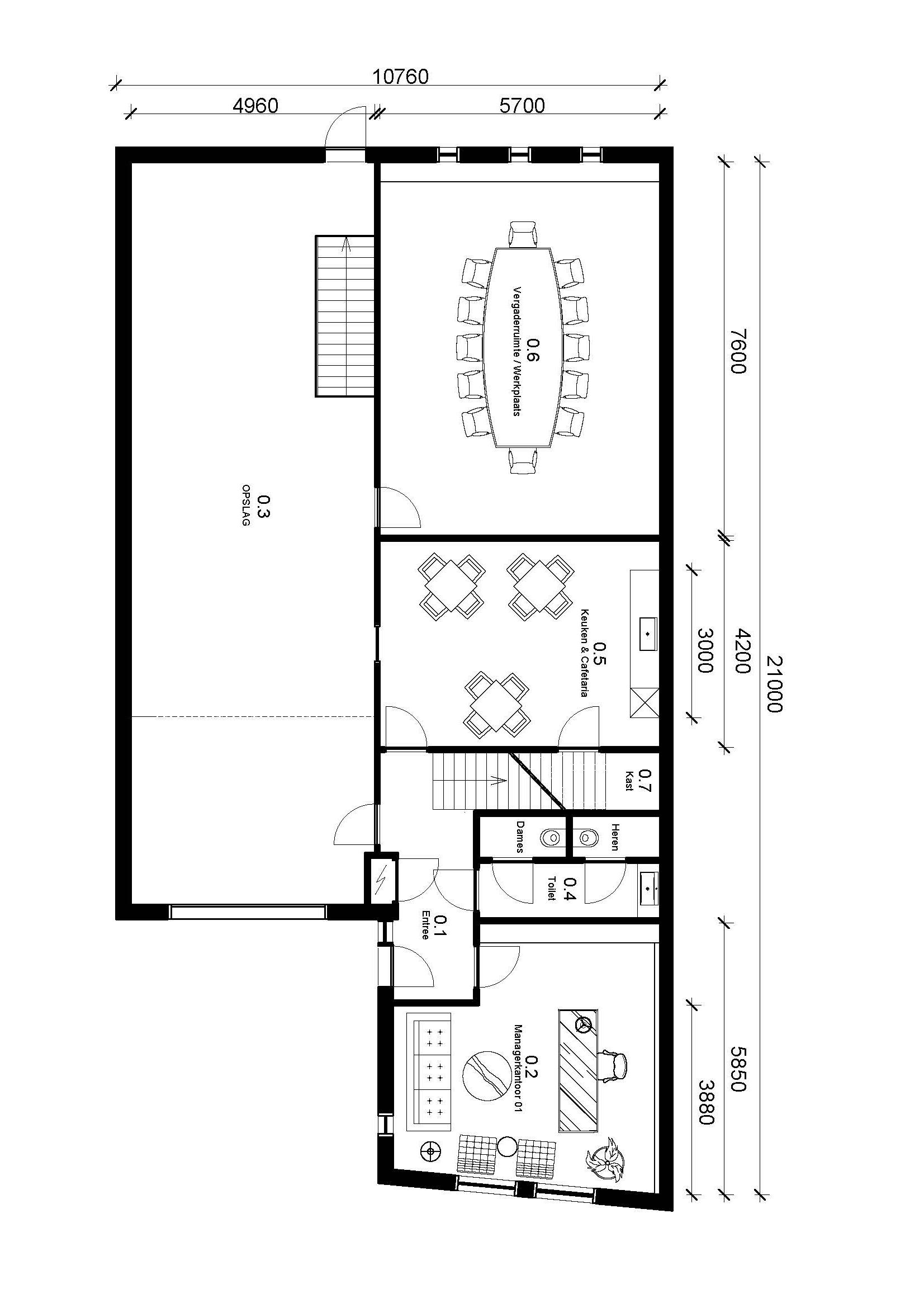
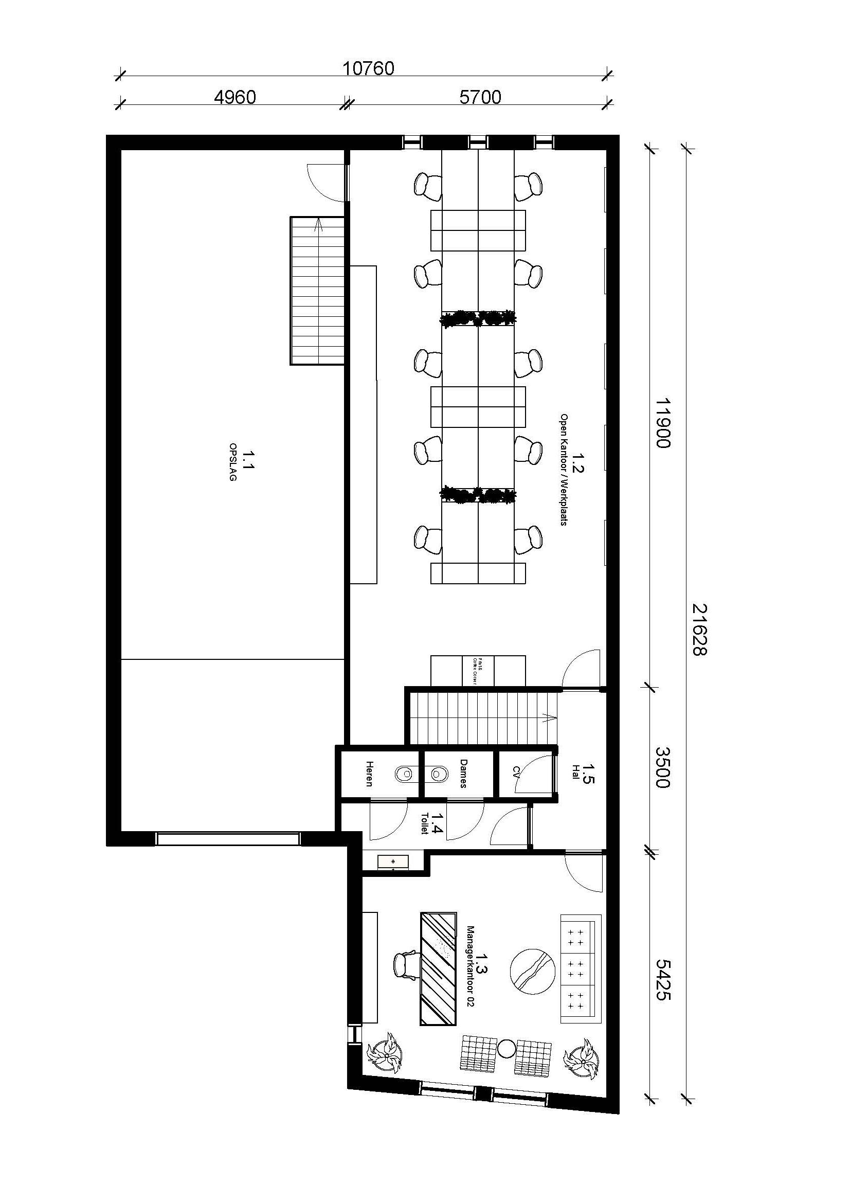
Beschikbare oppervlakte voor de verhuur
Circa 351 m² totaal - onderverdeeld in
Circa 244 m² bedrijfsruimte - over 2 bouwlagen
Circa 107 m² kantoorruimte - over 2 bouwlagen
Parkeergelegenheid
2 eigen parkeerplaatsen, gelegen aan de voorzijde van het bedrijfspand, aanvullend gratis parkeerplaatsen op het gezamenlijke binnenterrein.
Opleveringsniveau bedrijfsruimte
• vrije hoogte van circa 5,5 meter, circa 3 meter onder de entresolvloer, circa 2,6 meter op de entresolvloer
• vrije overspanning van circa 5 meter
• maximaal toelaatbare vloerbelasting van circa 1.500 kg / m²
• entresolvloer van circa 56 m² met een draagvermogen van 431 kg/m²
• 1 elektrisch bedienbare overheaddeur afm. 3,5 x 4 meter (BxH)
• monolithisch afgewerkte betonvloer
• verlichting middels opbouwarmaturen voorzien van TL-verlichting
• verwarming middels indirect gestookte heater
Opleveringsniveau kantoorruimte
• systeemplafonds
• verlichting middels LED-inbouwarmaturen
• te openen ramen middels draaisysteem
• deels houten en deels kunststof kozijnen voorzien van dubbele beglazing
• per bouwlaag dames en heren toilet voorzien van voorportaal met fonteintje
• pantry voorzien van koelkast met vriesvak, vaatwasser, oven/magnetron en close-in boiler *
• verwarming middels Cv-installatie met radiatoren
Zaken aangegeven met "*" worden eenmalig en omniet door Verhuurder aan Huurder ter beschikking gesteld. Eventuele reparatie, onderhoud en-/of vervangen van deze zaken komt voor rekening en risico van Huurder.
Opleveringsniveau terrein
• 100% bestraat met klinkers
• omheind middels hekwerk
• afsluitbaar middels elektrische schuifpoort
Aanvaarding
Juni 2026
Energielabel
De kantoorruimte beschikt over het zeer gunstige energielabel A+ welke geldig is tot 20-01-2036.
Hiermee voldoet de kantoorruimte reeds ruimschoots aan de overheidsdoelstellingen waarbij vanaf 2023 alle bedrijfsgebouwen die naast de industriefunctie één of meer gebruiksfuncties hebben zoals kantoorruimte (waarbij het gebruiksoppervlakte groter is dan 50 m²) energielabelplichtig zijn.
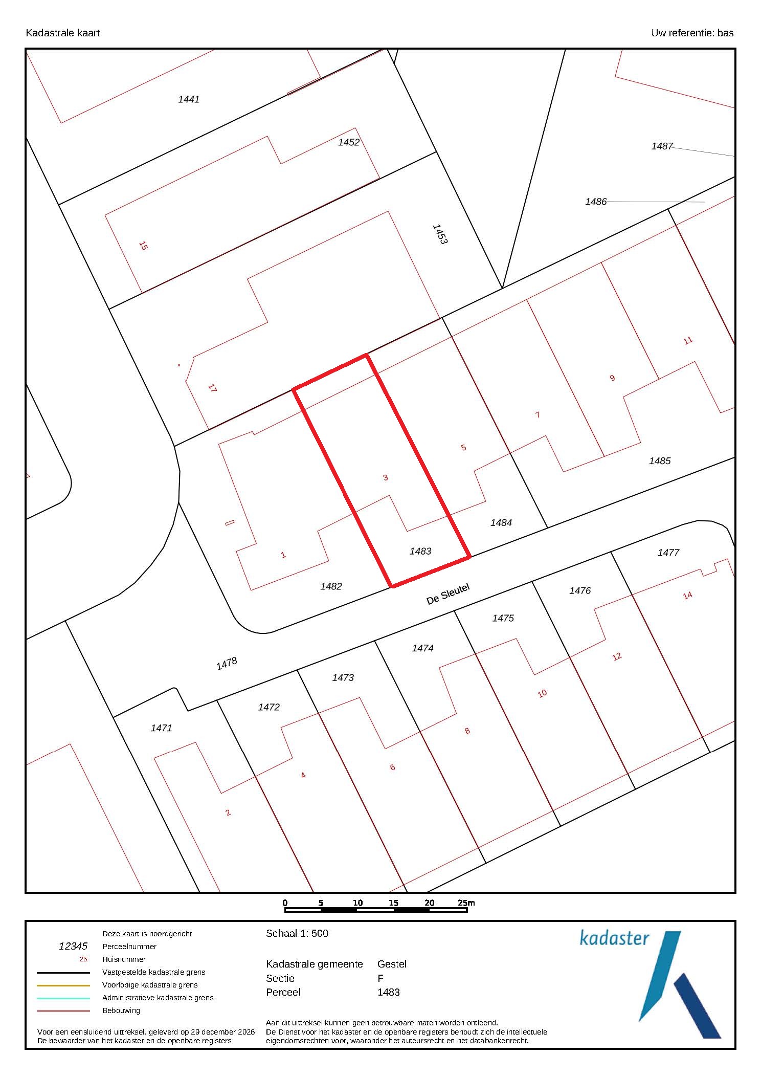
Kadastrale gegevens De Sleutel 3 te Eindhoven
Gemeente: Gestel
Sectie: F
Perceelnummer: 1483
Oppervlakte: 355 m² (geheel perceel)
Bestemmingsplan
Het bestemmingsplan van dit bedrijfsgebouw aan De Sleutel 3 te Eindhoven op Bedrijventerrein De Hurk is op te vragen via één van onze bedrijfsmakelaars bij Bossers & Fitters Bedrijfshuisvesting B.V. en/of via de website van het omgevingsloket.
Bouwjaar
1991
Gerenoveerd
2026
Bijzonderheden
Het object is grotendeels gerenoveerd (2026) waaronder: nieuwe systeemplafonds in de entree-/kantoor-/kantineruimte met LED verlichting, volledig nieuw en uitgebreid sanitair inclusief tegelwerk, nieuwe elektrotechnische installatie, nieuw stucwerk schilderklaar, nieuwe pantry met apparatuur (koel/vries, vaatwasser, combi oven/magnetron en close-in boiler.
HUURGEGEVENS
Aanvangshuurprijs
€ 3.250,00 per maand te vermeerderen met de geldende B.T.W.
Voorschot servicekosten
Nader overeen te komen.
Huurtermijn
Vijf (5) jaren.
Verlengingstermijn
Telkens met vijf (5) jaar.
Opzegtermijn
Twaalf (12) maanden voorafgaand aan de expiratiedatum.
Huurindexering
De huurprijs van dit bedrijfspand aan De Sleutel 3 te Eindhoven zal jaarlijks worden geïndexeerd, voor het eerst één jaar na huuringangsdatum, op basis van het maandprijsindexcijfer volgens de consumentenprijsindex CPI-alle huishoudens (2015=100), dan wel meest recente tijdsbasis, gepubliceerd door het Centraal Bureau voor de statistiek (CBS).
Zekerheidsstelling
Bankgarantie of waarborgsom ter grootte van drie (3) maanden huur inclusief eventuele servicekosten en B.T.W.
Huurbetaling
Per maand vooruit te voldoen.
B.T.W.
Indien huurder niet aan het “90% criterium” (aandeel belaste prestaties) voldoet, zal er van rechtswege sprake zijn van omzetbelasting vrijgestelde verhuur. Als dan wordt de overeengekomen kale huurprijs, exclusief omzetbelasting, zodanig verhoogd, dat het voor verhuurder ontstane financiële nadeel wordt gecompenseerd.
Huurcontract
R.O.Z.-model, huurovereenkomst kantoorruimte en andere bedrijfsruimte in de zin van artikel 7:230a BW met de benodigde aanvullingen.
Meer informatie
Wenst u meer informatie over deze beschikbare bedrijfsruimte met kantoor welke te huur is in dit gerenoveerde bedrijfsgebouw aan De Sleutel 3 te Eindhoven, neem dan vrijblijvend contact op met één van de bedrijfsmakelaars bij Bossers & Fitters Bedrijfshuisvesting B.V. Onze bedrijfsmakelaar de heer Bas Deitmers RM RT is van alle beschikbare informatie op de hoogte betreffende deze verhuur.
Disclaimer
Plattegronden, visualisaties en tekeningen: het is de verhuurder/verkoper voorbehouden om wijzigingen aan te brengen in de maatvoering, indeling en het voorzieningenniveau, welke kunnen afwijken van deze tekening. Aan de plattegronden, visualisaties en tekeningen kunnen derhalve geen rechten worden ontleend en geven slechts een indicatie weer.
Fotogalerij
Foto's
-
Tekeningen
-
Energielabel
Locatie
Adres
De Sleutel 3
5652 AS Eindhoven
Bedrijventerrein De Hurk
Plan een bezichtiging
Contacteer onze bedrijfsmakelaar voor vragen over dit object of vraag een bezichtiging aan met de bedrijfsmakelaar.
- Bedrijfsmakelaar:
- Bas Deitmers RM RT
- E-mail: bas@bossers-fitters.nl
- Bel: +31 (0)6 13 35 25 49