Kerstrooslaan 4 te Eindhoven, praktijk en kantoorunits in karakteristieke voormalige school!
Beschrijving
Locatie
De twee te huur aangeboden units in dit karakteristieke kantoorgebouw aan de Kerstrooslaan 4 te Eindhoven, zijn gelegen in stadsdeel Stratum. Het betreft hier een voormalig schoolgebouw met nog veel authentieke elementen. Het kantoorgebouw ligt via de Leenderweg dichtbij het centrum en de op-/afrit van de N2-A2. In dit kantoorpand, uitermate geschikt als praktijkruimte, zijn onder andere gevestigd; Apotheek De Roosten, Dental Clinics Eindhoven en Energie Bouwadvies.
Bereikbaarheid
Deze twee kantoor-/praktijkunits in stadsdeel Stratum aan de Kerstrooslaan 4 te Eindhoven in dit karakteristieke gebouw zijn gelegen aan de zuidkant van Eindhoven en heeft directe aansluiting met de A2/N2 en A67. Via de toegangswegen Leenderweg, Aalsterweg en Geldropseweg is het centrum zéér goed bereikbaar. Diverse buslijnen zorgen voor een goede verbinding met het centrum en het Centraal Station Eindhoven waardoor de bereikbaarheid zéér goed te noemen is.
OBJECTGEGEVENS
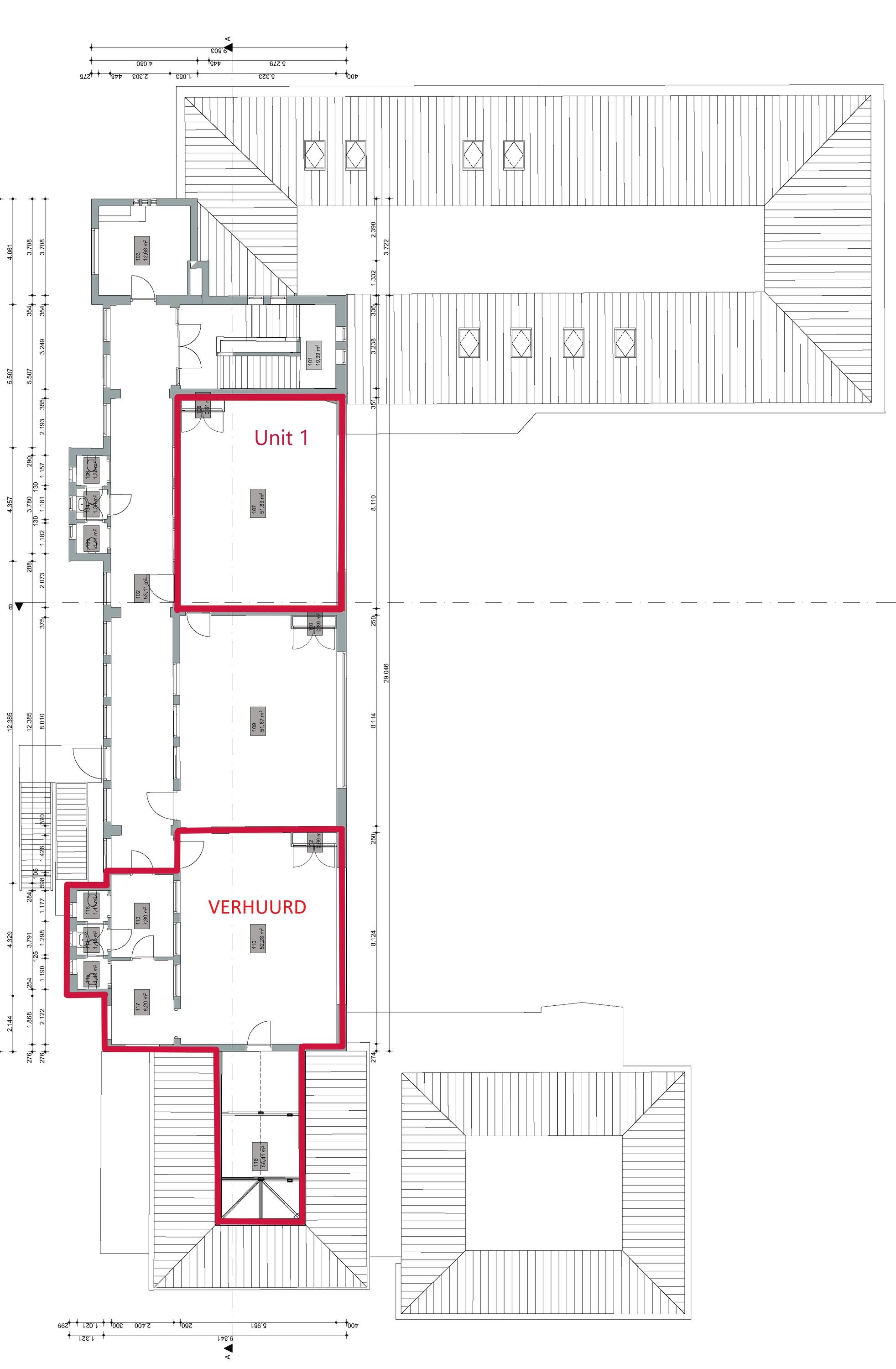
Beschikbare oppervlakte voor de verhuur
Circa 169 m² totaal - verdeeld over 2 units - vanaf circa 75 m²
Unit 1 - circa 75 m² kantoorruimte / praktijkruimte - 1e verdieping
Unit 2 - circa 94 m² kantoorruimte / praktijkruimte - 1e verdieping
Parkeergelegenheid
Ruime parkeervoorziening beschikbaar gelegen op eigen afgesloten parkeerterrein, aan de voorzijde van het karakteristieke voormalige schoolgebouw aan de Kerstrooslaan 4 te Eindhoven. Aanvullend gratis openbare parkeerplaatsen in de nabije omgeving.
Opleveringsniveau kantoorruimte / praktijkruimte
• ruime gezamenlijke entree via schuifdeur en voorzien van pvc vloer
• verlichting middels opbouwarmaturen
• houten kozijnen voorzien van enkele beglazing en te openen ramen
• verwarming middels CV-installatie met radiatoren
• airconditioning
• diverse aansluitingen voor data en elektra
• vloerstoffering / laminaat / terrazzo vloer
• de units hebben hoge plafonds en grote raampartijen voor veel daglicht
• brandblusvoorzieningen
• dames- en heren toilet met voorportaal voorzien van fonteintje
• pantry (gezamenlijk)
Opleveringsniveau terrein
• 100 % bestraat met klinkers
• omheind middels hekwerk
• afsluitbaar middels poort
Aanvaarding
In overleg op korte termijn.
Kadastrale gegevens Kerstrooslaan 4 te Eindhoven
Gemeente: Stratum
Sectie: D
Perceelnummers: 6652 + 6653 + 6654
Bestemmingsplan
Het bestemmingsplan van dit voormalige schoolgebouw aan de Kerstrooslaan 4 te Eindhoven in het stadsdeel Stratum is op te vragen via één van onze bedrijfsmakelaars bij Bossers & Fitters Bedrijfshuisvesting B.V. en/of via de website van het omgevingsloket.
Bouwjaar
1929
HUURGEGEVENS
Aanvangshuurprijs kantoorruimte / praktijkruimte
Unit 1 - € 11.500,00 per jaar
Unit 2 - € 13.000,00 per jaar
Voorschot servicekosten
25% van de huursom
Huurtermijn
In overleg
Verlengingstermijn
In overleg
Opzegtermijn
Twaalf (12) maanden voorafgaande aan de expiratiedatum.
Huurindexering
De huurprijs van dit kantoorpand aan de Kerstrooslaan 4 te Eindhoven in stadsdeel Stratum zal jaarlijks worden geïndexeerd, voor het eerst één jaar na huuringangsdatum, op basis van het maandprijsindexcijfer volgens de consumentenprijsindex CPI-alle huishoudens (2015=100), dan wel meest recente tijdsbasis, gepubliceerd door het Centraal Bureau voor de statistiek (CBS).
Zekerheidsstelling
Bankgarantie of waarborgsom ter grootte van drie (3) maanden huur inclusief servicekosten.
Huurbetaling
Per kwartaal vooruit te voldoen middels automatische incasso.
B.T.W.
De huur is vrijgesteld van B.T.W.
Huurcontract
R.O.Z.-model, huurovereenkomst kantoorruimte en andere bedrijfsruimte in de zin van artikel 7:230a BW met de benodigde aanvullingen.
Meer informatie
Wenst u meer informatie over deze beschikbare kantoorruimte / praktijkruimte met archief welke te huur is in dit vrijstaande kantoorgebouw aan de Kerstrooslaan 4 te Eindhoven, neem dan vrijblijvend contact op met één van de bedrijfsmakelaars bij Bossers & Fitters Bedrijfshuisvesting B.V.
Onze bedrijfsmakelaar de heer Bas Deitmers RT is van alle beschikbare informatie op de hoogte betreffende de verhuur van de kantoorruimte / praktijkruimte met archiefruimte in dit kantoorpand aan de Kerstrooslaan 4 te Eindhoven.
Fotogalerij
Foto's
-
Tekeningen
Locatie
Adres
Kerstrooslaan 4
5644 EA Eindhoven
Stadsdeel Stratum
Plan een bezichtiging
Contacteer onze bedrijfsmakelaar voor vragen over dit object of vraag een bezichtiging aan met de bedrijfsmakelaar.

- Bedrijfsmakelaar:
- Bas Deitmers RM RT
- E-mail: bas@bossers-fitters.nl
- Bel: +31 (0)6 13 35 25 49