Meerkollaan 5 te Eindhoven, een instapklare kantoorvloer te huur in het souterrain!
Beschrijving
Locatie
De te huur aangeboden instapklare kantoorruimte in het souterrain van deze moderne kantoorvilla aan de Meerkollaan 5 te Eindhoven, is gelegen op een uitstekende locatie in de gewilde omgeving van de Parklaan. De directe omgeving bestaat voornamelijk uit soortgelijke kantoor-/woonvilla’s. Enkele bedrijven die gevestigd zijn in de directe omgeving zijn New Media Systems, DSV Advocaten, Van Lanschot Bankiers, RSM Wehrens Mennen & de Vries, Wesselman Accountants en Adviesbureau Tielemans.
Bereikbaarheid
Stadsdeel Tongelre te Eindhoven is gelegen aan de oostkant van Eindhoven. Via de toegangsweg A270/N270 is het centrum van Eindhoven en Helmond zéér goed bereikbaar. Diverse buslijnen zorgen voor een goede verbinding met Helmond en het Centraal Station Eindhoven.
OBJECTGEGEVENS
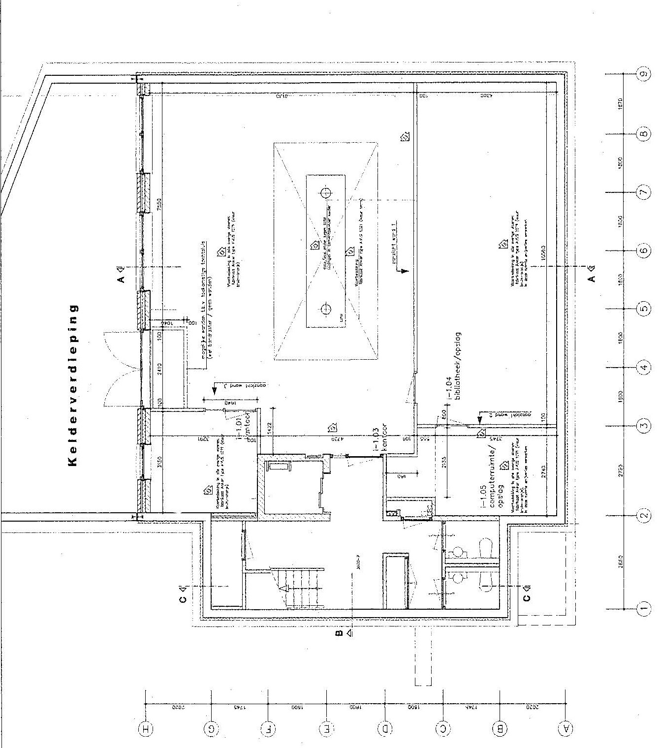
Beschikbare oppervlakte voor de verhuur
Circa 178 m² kantoorruimte - souterrain
Parkeergelegenheid
2 parkeerplaatsen gelegen op eigen terrein (uit te breiden in overleg).
Opleveringsniveau kantoorruimte
• representatieve gemeenschappelijke entree met tochtportaal en bellentableau
• centraal trappenhuis
• lift (630 kg / 8 personen)
• werkkast
• brandmeldinstallatie
• brandpreventiemiddelen
• systeemplafonds met ingebouwde verlichtingsarmaturen
• vloerbedekking*
• scheidingswanden met glasinzetten*
• kabelgootsysteem met elektrabekabeling
• databekabeling (type UTP cat 5)
• patchkast*
• toiletten (per verdieping) gescheiden dames/heren
• luchtbehandelingsysteem met Daikin airconditioning
• vast werkblad
• alarm*
• intercom-/deuropener (videofoon)
• buitenverlichting
• gemeenschappelijke fietsenstalling
• automatische rolpoort
Zaken aangegeven met "*" worden eenmalig en omniet door Verhuurder aan Huurder ter beschikking gesteld. Eventuele reparatie, onderhoud en-/of vervangen van deze zaken komt voor rekening en risico van Huurder.
Gemeenschappelijk met andere huurders
• gemeenschappelijke fietsenstalling
Opleveringsniveau terrein
• grotendeels verhard middels klinkers
• omheind
• afsluitbaar middels schuifpoort
• buitenverlichting
Aanvaarding
Januari 2026
Energielabel
Het kantoorgebouw beschikt over het gunstige energielabel A welke geldig is tot 26-11-2025. Hiermee voldoet het kantoorpand reeds aan de overheidsdoelstellingen waarbij vanaf 2023 alle utiliteitsgebouwen minimaal een energielabel C dienen te hebben.
Kadastrale gegevens Meerkollaan 5 te Eindhoven
Gemeente: Tongelre
Sectie: F
Perceelnummer: 1881
Oppervlakte: 1.290 m² (gedeeltelijk perceel)
Bestemmingsplan
Het bestemmingsplan van dit kantoorgebouw aan de Meerkollaan 5 te Eindhoven in stadsdeel Tongelre is op te vragen via één van onze bedrijfsmakelaars bij Bossers & Fitters Bedrijfshuisvesting B.V. en/of via de website van het omgevingsloket.
Bouwjaar
2004
HUURGEGEVENS
Aanvangshuurprijs
€ 22.250,00 per jaar te vermeerderen met de geldende B.T.W.
Aanvangshuurprijs parkeerplaatsen
€ 750,00 per parkeerplaats per jaar te vermeerderen met de geldende B.T.W.
Voorschot servicekosten
€ 37,00 per m² per jaar te vermeerderen met de geldende B.T.W.
Huurtermijn
Vijf (5) jaren.
Verlengingstermijn
Telkens met vijf (5) jaar.
Opzegtermijn
Twaalf (12) maanden voorafgaand aan de expiratiedatum.
Huurindexering
De huurprijs van dit kantoorpand aan de Meerkollaan 5 te Eindhoven in stadsdeel Tongelre zal jaarlijks worden geïndexeerd, voor het eerst één jaar na huuringangsdatum, op basis van het maandprijsindexcijfer volgens de consumentenprijsindex CPI-alle huishoudens (2015=100), dan wel meest recente tijdsbasis, gepubliceerd door het Centraal Bureau voor de statistiek (CBS).
Zekerheidsstelling
Bankgarantie of waarborgsom ter grootte van drie (3) maanden huur inclusief eventuele servicekosten en B.T.W.
Huurbetaling
Per kwartaal vooruit te voldoen middels automatische incasso.
B.T.W.
Indien huurder niet aan het “90% criterium” (aandeel belaste prestaties) voldoet, zal er van rechtswege sprake zijn van omzetbelasting vrijgestelde verhuur. Als dan wordt de overeengekomen kale huurprijs, exclusief omzetbelasting, zodanig verhoogd, dat het voor verhuurder ontstane financiële nadeel wordt gecompenseerd.
Huurcontract
R.O.Z.-model, huurovereenkomst kantoorruimte en andere bedrijfsruimte in de zin van artikel 7:230a BW met de benodigde aanvullingen.
Meer informatie
Wenst u meer informatie over deze beschikbare kantoorruimte welke te huur is in deze moderne vrijstaande kantoorvilla aan de Meerkollaan 5 te Eindhoven, neem dan vrijblijvend contact op met één van de bedrijfsmakelaars bij Bossers & Fitters Bedrijfshuisvesting B.V.
Onze bedrijfsmakelaar de heer Pim van der Werff is van alle beschikbare informatie op de hoogte betreffende de verhuur van de kantoorruimte gelegen in dit kantoorpand aan de Meerkollaan 5 te Eindhoven.
Fotogalerij
Foto's
-
Tekeningen
-
Energielabel
Locatie
Adres
Meerkollaan 5
5613 BS Eindhoven
Stadsdeel Tongelre
Plan een bezichtiging
Contacteer onze bedrijfsmakelaar voor vragen over dit object of vraag een bezichtiging aan met de bedrijfsmakelaar.

- Bedrijfsmakelaar:
- Pim van der Werff
- E-mail: pim@bossers-fitters.nl
- Bel: +31 (0)6 39 66 91 60