Panovenweg 22-29 te Helmond, 16 hoogwaardig getransformeerde Businesslofts nagenoeg instapklaar!
Beschrijving
Locatie
De te koop aangeboden volledig getransformeerde hoogwaardige duurzame Businesslofts (A++) met parkeerplaatsen aan de Panovenweg 22-29 te Helmond, genaamd " Project Panoven", zijn gelegen bij de Automotive Campus op Businesspark Groot Schooten. Met dit project wordt tegemoet gekomen aan de grote vraag naar zelfstandige compacte koop kantoorunits binnen de Brainport Regio. Een uitgelezen kans om uw bedrijf te vestigen op deze prachtige zichtlocatie, een nationale/internationale hotspot waar technologie, mobiliteiten en ondernemerschap samenkomen.
Bereikbaarheid
Het complex ligt op Businesspark Groot Schooten en is zowel met eigen vervoer als met het openbaar vervoer goed bereikbaar. De locatie ligt direct aan belangrijke wegen zoals de provinciale weg N270 (Helmond–Eindhoven) en heeft een snelle aansluiting op de A67, wat de locatie ook met de auto makkelijk toegankelijk maakt. Voor openbaar vervoer zijn er diverse bushaltes en een treinstation op loopafstand waardoor reizen per trein en bus ook zéér aantrekkelijk is.
OBJECTGEGEVENS
Beschikbare oppervlakte voor de verkoop
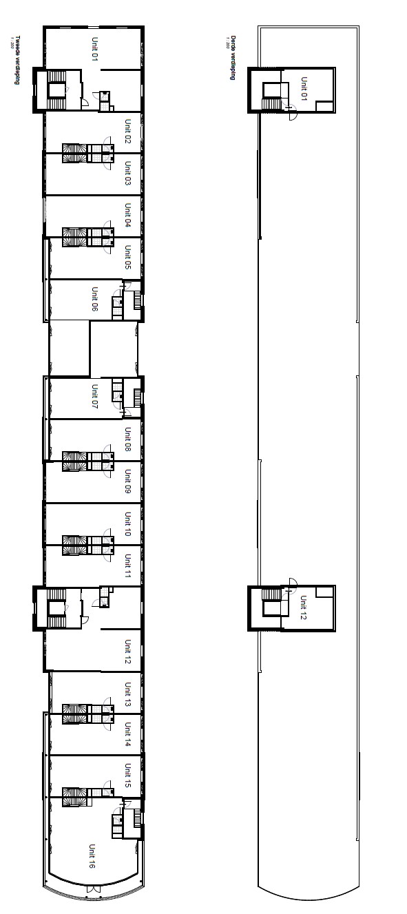
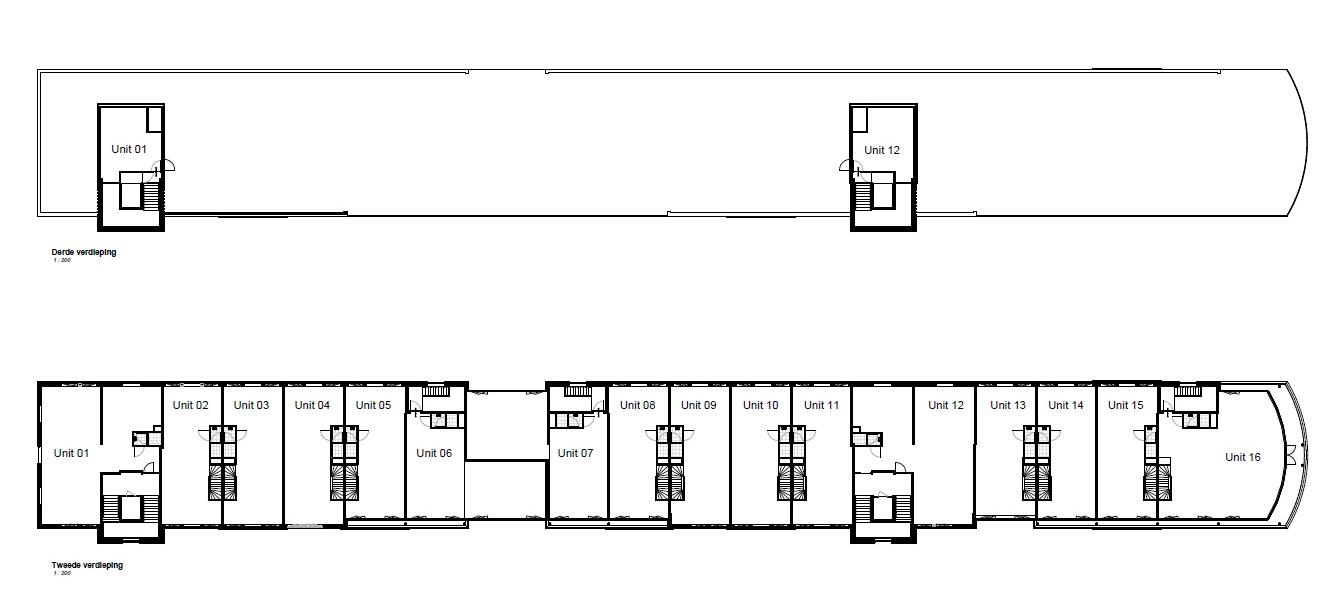
Circa 3.932 m² (b.v.o.) totaal - verdeeld over 16 units verdeeld over 3 bouwlagen
Unit 01 - circa 400 m² (b.v.o.) - verdeeld over 4 bouwlagen, 8 parkeerplaatsen
Unit 02 - circa 198 m² (b.v.o.) - verdeeld over 3 bouwlagen, 4 parkeerplaatsen
Unit 03 - circa 202 m² (b.v.o.) - verdeeld over 3 bouwlagen, 4 parkeerplaatsen
Unit 04 - circa 202 m² (b.v.o.) - verdeeld over 3 bouwlagen, 4 parkeerplaatsen
Unit 05 - circa 200 m² (b.v.o.) - verdeeld over 3 bouwlagen, 4 parkeerplaatsen
Unit 06 - circa 236 m² (b.v.o.) - verdeeld over 3 bouwlagen, 4 parkeerplaatsen
Unit 07 - circa 234 m² (b.v.o.) - verdeeld over 3 bouwlagen, 4 parkeerplaatsen
Unit 08 - circa 199 m² (b.v.o.) - verdeeld over 3 bouwlagen, 4 parkeerplaatsen
Unit 09 - circa 202 m² (b.v.o.) - verdeeld over 3 bouwlagen, 4 parkeerplaatsen
Unit 10 - circa 202 m² (b.v.o.) - verdeeld over 3 bouwlagen, 4 parkeerplaatsen
Unit 11 - circa 198 m² (b.v.o.) - verdeeld over 3 bouwlagen, 4 parkeerplaatsen
Unit 12 - circa 423 m² (b.v.o.) - verdeeld over 4 bouwlagen, 8 parkeerplaatsen
Unit 13 - circa 192 m² (b.v.o.) - verdeeld over 3 bouwlagen, 4 parkeerplaatsen
Unit 14 - circa 199 m² (b.v.o.) - verdeeld over 3 bouwlagen, 4 parkeerplaatsen
Unit 15 - circa 199 m² (b.v.o.) - verdeeld over 3 bouwlagen, 4 parkeerplaatsen
Unit 16 - circa 446 m² (b.v.o.) - verdeeld over 3 bouwlagen, 9 parkeerplaatsen
Parkeergelegenheid
4 tot 9 eigen parkeerplaatsen per Businessloft gelegen voor of achter het complex. Aanvullend gratis openbare parkeervakken aan de straatzijde.
Opleveringsniveau
De Businesslofts worden hoogwaardig, duurzaam en nagenoeg instapklaar opgeleverd (vloerbedekking zelf nog in te vullen).
Koperswensen
Koperswensen zijn mogelijk, waarbij Bouwbedrijf van Gerwen de kopersbegeleiding verzorgt.
Aanvaarding
250 werkbare dagen vanaf start bouw. Start bouw bij 80% verkocht (= 13 Businesslofts)
Energielabel
De Businesslofts beschikken bij oplevering over het zéér gunstige energielabel A++
Hiermee voldoen de Businesslofts ruimschoots aan de overheidsdoelstelling waarbij vanaf 2023 alle utiliteitsgebouwen minimaal een energielabel C dienen te hebben.
Kadastrale gegevens Panovenweg 22-29 te Helmond
Gemeente: Helmond
Sectie: T
Perceelnummer: 8017
Gedeeltelijk
Bestemmingsplan
Het bestemmingsplan van Project Panoven aan de Panovenweg 22-29 te Helmond op Businesspark GF is op te vragen via één van onze bedrijfsmakelaars bij Bossers & Fitters Bedrijfshuisvesting B.V. en/of via de website van het omgevingsloket.
Bouwjaar
2026
Technische info
Voor meer informatie zie onze brochure van Panovenweg 22-29 te Helmond.
KOOPGEGEVENS
Koopsom
Unit 01: € 896.000,00 Kosten Koper
Unit 02: € 443.600,00 Kosten Koper
Unit 03: € 452.400,00 Kosten Koper
Unit 04: € 452.400,00 Kosten Koper
Unit 05: € 448.000,00 Kosten Koper
Unit 06: € 527.200,00 Kosten Koper
Unit 07: € 522.800,00 Kosten Koper
Unit 08: € 445.800,00 Kosten Koper
Unit 09: € 452.400,00 Kosten Koper
Unit 10: € 452.400,00 Kosten Koper
Unit 11: € 443.600,00 Kosten Koper
Unit 12: € 946.600,00 Kosten Koper
Unit 13: € 430.400,00 Kosten Koper
Unit 14: € 445.800,00 Kosten Koper
Unit 15: € 445.800,00 Kosten Koper
Unit 16: € 999.200,00 Kosten Koper
Notaris
Inbegrepen in de koopsom, PVM Notarissen te Almere.
Zekerheidsstelling
10% van de koopsom te storten binnen 7 dagen na ondertekening van de koopovereenkomst en algemene voorwaarden van aanneming.
B.T.W.
Er zal niet worden geopteerd voor een met B.T.W.-belaste verkoop.
Bijzonderheden
Er is overdrachtsbelasting van toepassing waarmee Kopers rekening dienen te houden.
Meer informatie
Wenst u meer informatie over de verkoop van deze Businesslofts aan de Panovenweg 22-29 te Helmond, neem dan vrijblijvend contact op met één van de bedrijfsmakelaars bij Bossers & Fitters Bedrijfshuisvesting B.V.
Onze bedrijfsmakelaar de heer B. Deitmers RM RT is van alle beschikbare informatie op de hoogte.
Fotogalerij
Foto's
-
Tekeningen
Locatie
Adres
Panovenweg 22 - 29
5708 HR Helmond
Businesspark Groot Schooten
Plan een bezichtiging
Contacteer onze bedrijfsmakelaar voor vragen over dit object of vraag een bezichtiging aan met de bedrijfsmakelaar.
- Bedrijfsmakelaar:
- Bas Deitmers RM RT
- E-mail: bas@bossers-fitters.nl
- Bel: +31 (0)6 13 35 25 49