Spaarpot 28 te Geldrop, bedrijfsruimte met kantoorruimte op bedrijventerrein De Spaarpot!
Beschrijving
Locatie
De te koop/te huur aangeboden bedrijfsruimte met kantoor en buitenterrein in dit bedrijfsgebouw aan de Spaarpot 28 te Geldrop is gelegen op Bedrijventerrein De Spaarpot. Dit Bedrijventerrein kenmerkt zich met name door de aanwezigheid van industriële en regionale bedrijven.
Bereikbaarheid
Deze bedrijfsruimte met kantoor en buitenterrein op Bedrijventerrein De Spaarpot te Geldrop aan de Spaarpot 28 is gelegen aan de doorgaande weg van en naar Nuenen. Op ca 10 minuten afstand zijn de op- en afritten van de A279 (Eindhoven - Helmond) en de A67 (Eindhoven-Venlo), waardoor de bereikbaarheid naar dit bedrijfspand aan de Spaarpot 28 zéér goed te noemen is.
OBJECTGEGEVENS
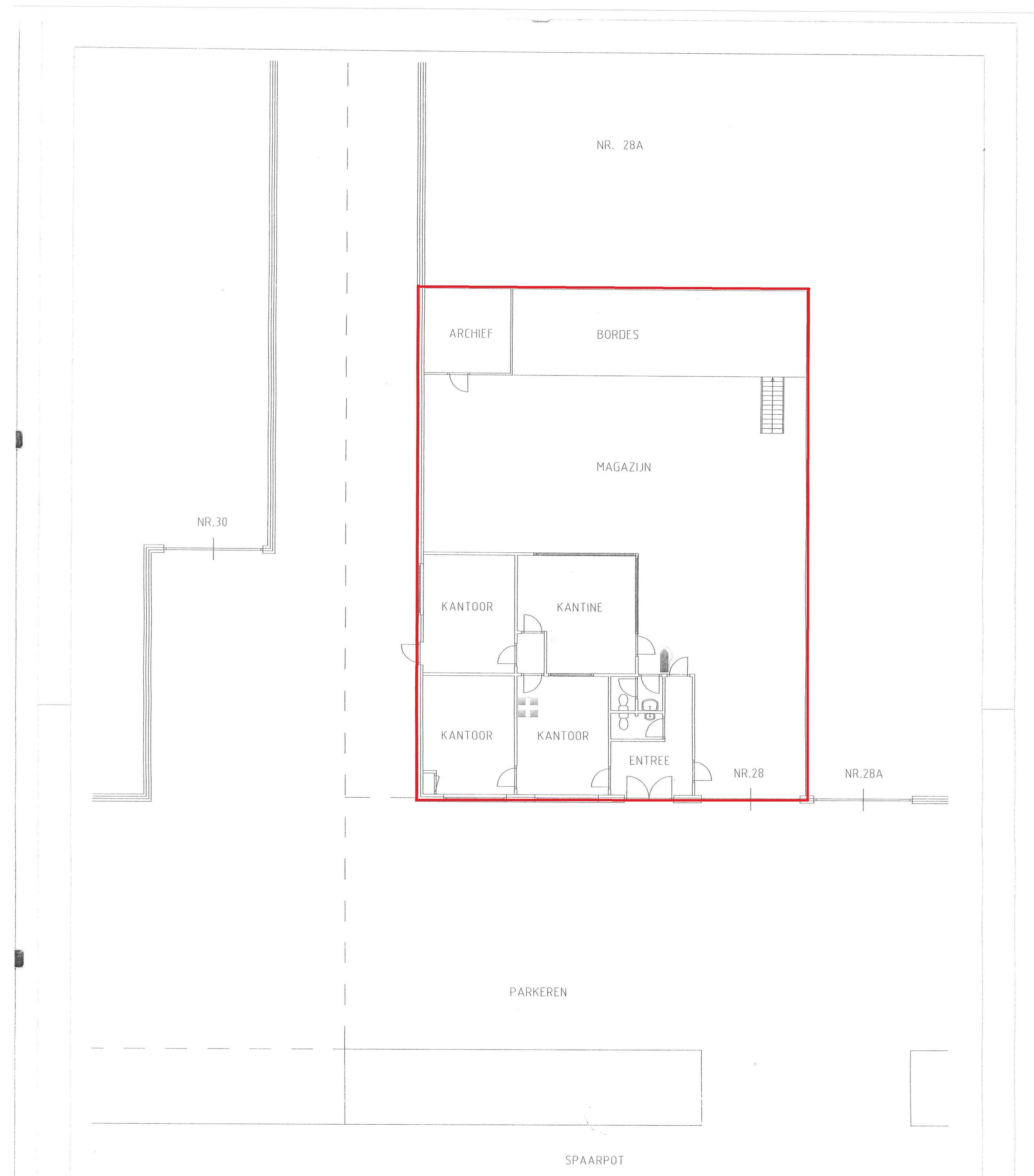
Beschikbare oppervlakte voor de verkoop/verhuur
Circa 315 m² totaal - onderverdeeld in
Circa 230 m² bedrijfsruimte - begane grond
Circa 85 m² kantoor - begane grond
Circa 200 m² buitenterrein
Parkeergelegenheid
Ruim voldoende parkeerplaatsen beschikbaar gelegen op eigen afgesloten buitenterrein aan de voorzijde en aanvullend gratis openbare parkeerplaatsen gelegen aan de openbare weg.
Opleveringsniveau bedrijfsruimte
• monolithisch afgewerkte betonvloer
• maximaal toelaatbare vloerbelasting van circa 1.500 kg / m²
• vrije hoogte circa 4 meter
• elektrisch bedienbare overheaddeur
• krachtstroomaansluiting aanwezig
• verlichting middels opbouwarmaturen
• daglichttoetreding middels lichtstraten
• alarminstallatie *
• brandmeldinstallatie *
• brandblusvoorzieningen
• toiletgroep met voorportaal voorzien van fonteintje
• verwarming middels direct gestookte heater
• airconditioning *
Opleveringsniveau kantoorruimte
• systeemplafonds
• verlichting middels inbouwarmaturen
• extra daglichttoetreding middels lichtstraten
• hardhouten kozijnen voorzien van dubbele beglazing
• vloerstoffering *
• huidige kamerindeling middels systeemwanden *
• alarminstallatie *
• brandmeldinstallatie *
• brandblusvoorzieningen
• toiletgroep met voorportaal voorzien van fonteintje
• pantry voorzien van vaatwasser *
• verwarming middels CV-installatie met radiatoren
• airconditioning *
Zaken aangegeven met "*" worden eenmalig omniet door Verhuurder aan Huurder ter beschikking gesteld. Eventueel onderhoud, reparatie en-/of vervanging komt voor rekening van Huurder.
Opleveringsniveau terrein
• circa 200 m² buitenterrein aan de voorzijde van het bedrijfsgebouw
• 100 % bestraat met klinkers
• omheind middels hekwerk
Aanvaarding
In overleg op korte termijn.
Kadastrale gegevens Spaarpot 28 te Geldrop
Gemeente: Geldrop
Sectie: H
Perceelnummer: 482
Oppervlakte: 585 m² (gedeeltelijk perceel)
Bestemmingsplan
Het bestemmingsplan van dit bedrijfsgebouw aan de Spaarpot 28 te Geldrop op Bedrijventerrein De Spaarpot is op te vragen via één van onze bedrijfsmakelaars bij Bossers & Fitters Bedrijfshuisvesting B.V. en/of via de website van het omgevingsloket.
Bouwjaar
1974
Bijzonderheden
Het object is in overleg ook te koop. Neem hiervoor contact op met de makelaar.
HUURGEGEVENS
Aanvangshuurprijs
€ 30.000,00 per jaar te vermeerderen met de geldende B.T.W.
Huurtermijn
Vijf (5) jaren.
Verlengingstermijn
Vijf (5) jaren.
Opzegtermijn
Twaalf (12) maanden voorafgaande aan de expiratiedatum.
Huurindexering
De huurprijs van dit bedrijfspand aan aan de Spaarpot 28 te Geldrop op Bedrijventerrein De Spaarpot zal jaarlijks worden geïndexeerd, voor het eerst één jaar na huuringangsdatum, op basis van het maandprijsindexcijfer volgens de consumentenprijsindex CPI-alle huishoudens (2015=100), dan wel meest recente tijdsbasis, gepubliceerd door het Centraal Bureau voor de statistiek (CBS).
Zekerheidsstelling
Waarborgsom ter grootte van drie (3) maanden huur.
Huurbetaling
Per kwartaal vooruit te voldoen middels automatische incasso.
B.T.W.
Indien huurder niet aan het “90% criterium” (aandeel belaste prestaties) voldoet, zal er van rechtswege sprake zijn van omzetbelasting vrijgestelde verhuur. Als dan wordt de overeengekomen kale huurprijs, exclusief omzetbelasting, zodanig verhoogd, dat het voor verhuurder ontstane financiële nadeel wordt gecompenseerd.
Huurcontract
R.O.Z.-model, huurovereenkomst kantoorruimte en andere bedrijfsruimte in de zin van artikel 7:230a BW met de benodigde aanvullingen.
Meer informatie
Wenst u meer informatie over deze beschikbare bedrijfsruimte met kantoor welke te koop/te huur is in dit bedrijfsgebouw aan de Spaarpot 28 te Geldrop, neem dan vrijblijvend contact op met één van de bedrijfsmakelaars bij Bossers & Fitters Bedrijfshuisvesting B.V.
Onze bedrijfsmakelaar de heer Bas Deitmers RM RT is van alle beschikbare informatie op de hoogte betreffende de verkoop/verhuur van de bedrijfsruimte met kantoor in dit bedrijfspand aan de Spaarpot 28 te Geldrop.
Fotogalerij
Foto's
-
Tekeningen
Locatie
Adres
Spaarpot 28
5667 KX Geldrop
Bedrijventerrein De Spaarpot
Plan een bezichtiging
Contacteer onze bedrijfsmakelaar voor vragen over dit object of vraag een bezichtiging aan met de bedrijfsmakelaar.
- Bedrijfsmakelaar:
- Bas Deitmers RM RT
- E-mail: bas@bossers-fitters.nl
- Bel: +31 (0)6 13 35 25 49