Van Kanstraat 11 te Eindhoven, bedrijfsruimte met kantoorruimte op hoeklocatie tegen woonwijk!
Beschrijving
Locatie
De te te koop aangeboden bedrijfsruimte met kantoor, buitenruimte en dakterras aan de Van Kanstraat 11 te Eindhoven, is gelegen in stadsdeel Strijp. Dit bedrijfspand ligt op een hoek dichtbij de binnenring en aansluitingen met de N2-A2 / A50 / A58 en A67. Het object is gelegen in een rustige hoek tegen een woonwijk en in de directe omgeving zijn onder andere gevestigd; Bedrijventerrein De Hurk, Het Evoluon, Van den Hoff Installatiebedrijf, Kentie Smart Packaging, Keuken Inbouwcenter en Smeg Store Eindhoven.
Bereikbaarheid
Stadsdeel Strijp te Eindhoven is gelegen aan de noord-westkant van Eindhoven en heeft directe aansluiting met de A2/N2 en A58. Via de toegangswegen Anthony Fokkerweg en Tilburgseweg is het centrum zéér goed bereikbaar. Zowel de nieuwe ontwikkelingsgebieden Strijp-S, Strijp-T als Strijp-R zijn in dit stadsdeel gelegen. Diverse buslijnen waaronder de HOV-lijn zorgen voor een snelle verbinding met de Airport, centrum en het Centraal Station Eindhoven.
OBJECTGEGEVENS
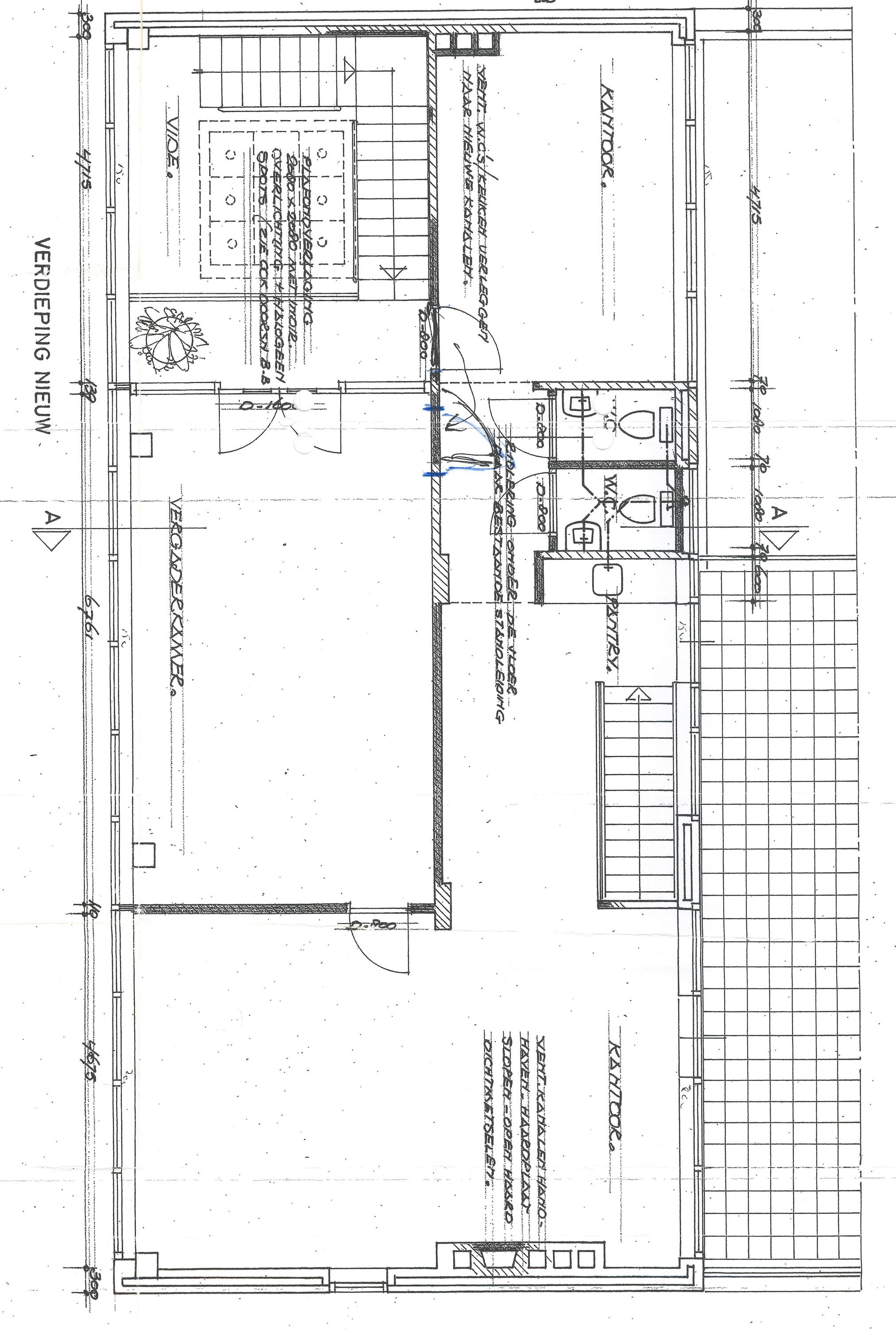
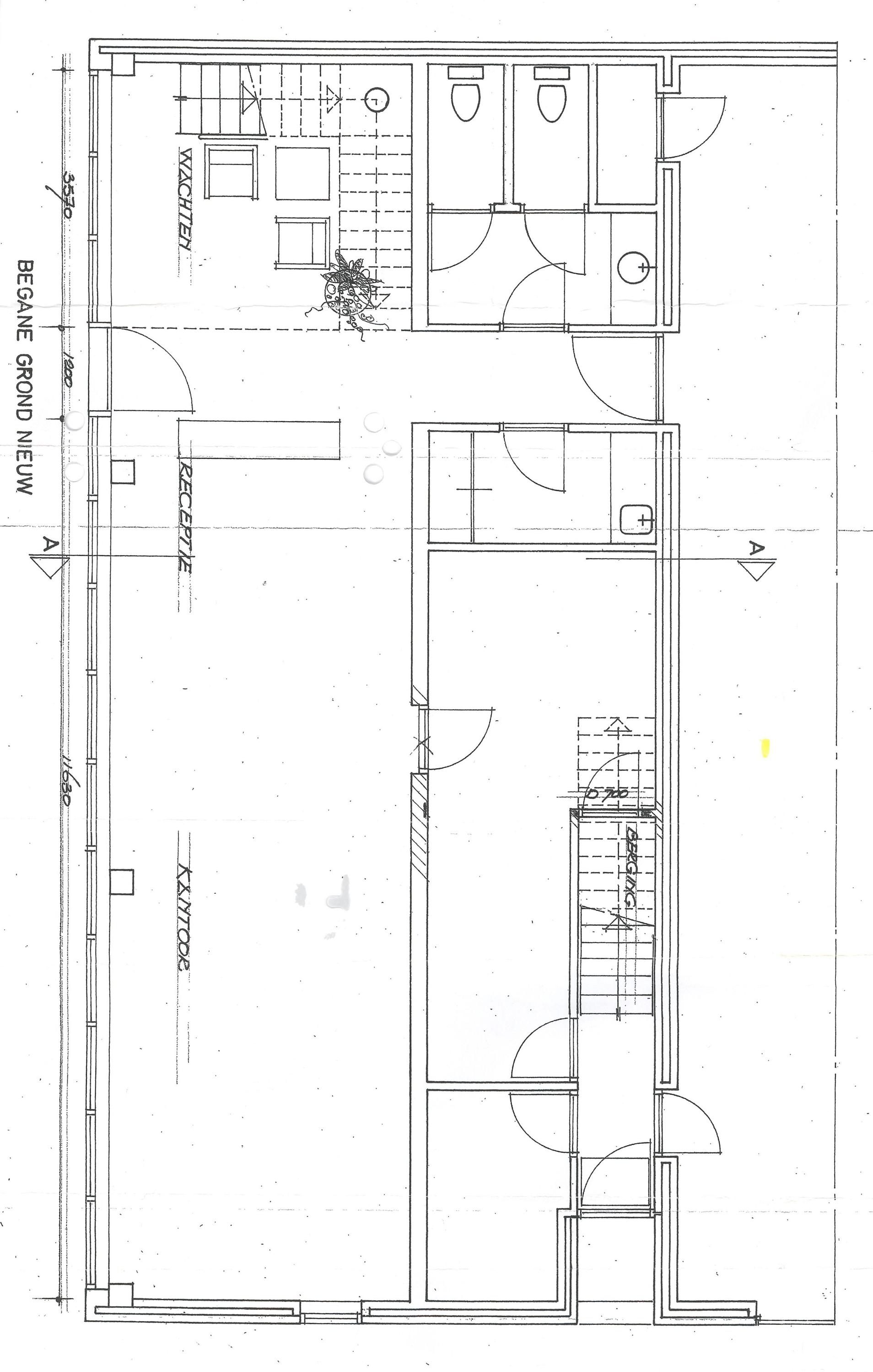
Circa 534 m² totaal - verdeeld over 2 bouwlagen - onderverdeel in
Circa 314 m² bedrijfsruimte - begane grond
Circa 220 m² kantoorruimte - verdeeld over 2 bouwlagen
Circa 48 m² dakterras
Circa 58 m² verhard buitenterrein aan de achterzijde van het bedrijfsgebouw.
Parkeergelegenheid
Ruim aantal gratis openbare parkeerplaatsen gelegen in de directe omgeving van het bedrijfsgebouw.
Opleveringsniveau bedrijfsruimte
• vrije hoogte van circa 3 meter
• vrije overspanning van circa 4 meter
• maximaal toelaatbare vloerbelasting van circa 1.000 kg / m²
• 1 elektrisch bedienbare overheaddeur afmeting circa 2,5 x 2,9 meter (HxB)
• garagedeur naar buitenruimte
• krachtstroomaansluiting aanwezig
• monolithisch afgewerkte betonvloer
• verlichting middels opbouwarmaturen
• daglichttoetreding middels ramen in de zijgevel
• alarminstallatie
• brandblusvoorzieningen
• verwarming middels 2 direct gestookte heaters
Opleveringsniveau kantoorruimte
• systeemplafonds
• verlichting middels inbouwarmaturen
• daglichttoetreding
• te openen ramen middels draaisysteem
• houten en stalen kozijnen voorzien van dubbele beglazing
• diverse aansluitingen voor data en elektra
• vloerstoffering
• huidige kamerindeling
• alarminstallatie
• 2 maal trapopgang naar de verdieping
• brandblusvoorzieningen
• boven en beneden gescheiden dames- en heren toiletgroep met voorportaal voorzien en fonteintje
• zowel boven als beneden een pantry
• verwarming middels Cv-installatie met radiatoren
• airconditioning deels
Opleveringsniveau terrein
• circa 58 m² buitenterrein aan de achterzijde van het bedrijfsgebouw
• 100% bestraat met klinkers
• omheind middels muur van metselwerk
• afsluitbaar middels dubbele poort
Aanvaarding
Per direct.
Energielabel
Nader op te maken
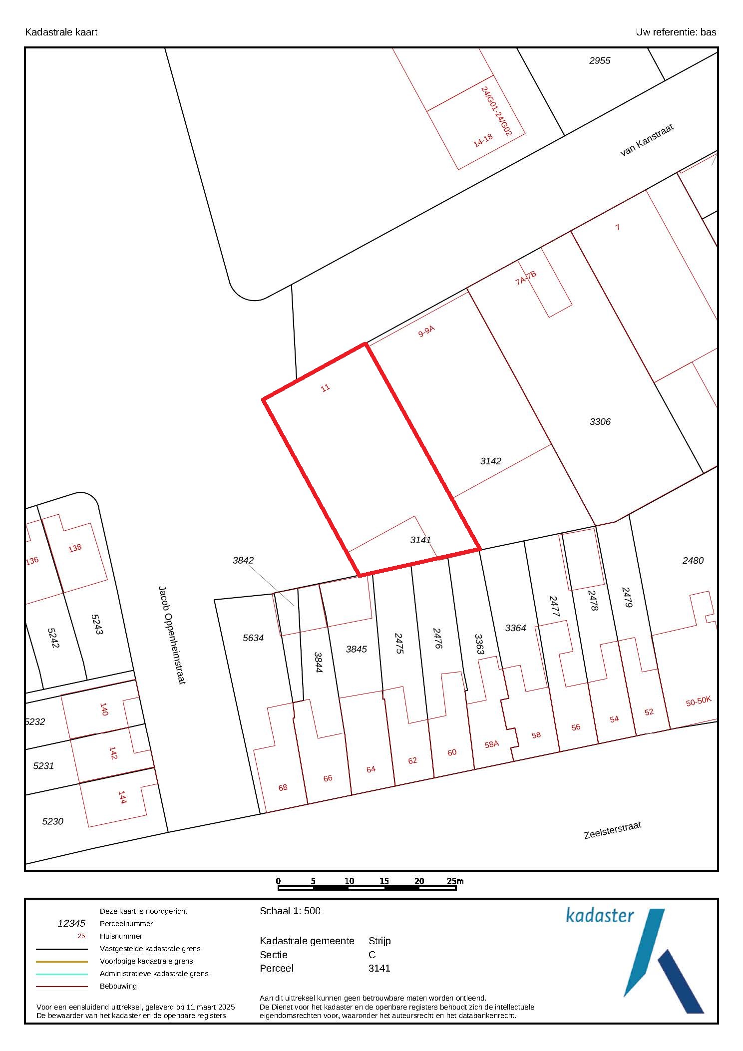
Kadastrale gegevens Van Kanstraat 11 te Eindhoven
Gemeente: Strijp
Sectie: C
Perceelnummer: 3141
Oppervlakte: 532 m² (geheel perceel)
Bestemmingsplan
Het bestemmingsplan van dit bedrijfsgebouw aan de Van Kanstraat 11 te Eindhoven in stadsdeel Strijp is op te vragen via één van onze bedrijfsmakelaars bij Bossers & Fitters Bedrijfshuisvesting B.V. en/of via de website van het omgevingsloket.
Bouwjaar
1969
KOOPGEGEVENS
Koopsom
€ 750.000,00 kosten koper.
Notaris
Door koper nader te bepalen.
Zekerheidsstelling
10% van de koopsom te stellen bij de ondertekening van de koopovereenkomst.
B.T.W.
Er zal niet worden geopteerd voor een met B.T.W.-belaste verkoop.
Meer informatie
Wenst u meer informatie over dit bedrijfsobject aan de Van Kanstraat 11 Eindhoven, neem dan vrijblijvend contact op met één van de bedrijfsmakelaars bij Bossers & Fitters Bedrijfshuisvesting B.V.
Onze bedrijfsmakelaar de heer Bas Deitmers RM RT is van alle beschikbare informatie op de hoogte.
Fotogalerij
Foto's
-
Tekeningen
Locatie
Adres
Van Kanstraat 11
5652 GA Eindhoven
Stadsdeel Strijp
Plan een bezichtiging
Contacteer onze bedrijfsmakelaar voor vragen over dit object of vraag een bezichtiging aan met de bedrijfsmakelaar.

- Bedrijfsmakelaar:
- Bas Deitmers RM RT
- E-mail: bas@bossers-fitters.nl
- Bel: +31 (0)6 13 35 25 49