Zuid Koninginnewal 45

5701 NS | Helmond

Zuid Koninginnewal 45-49, Helmond, winkel-/kantoorruimte in karakteristiek gebouw op centrumlocatie!

Beschrijving

Locatie

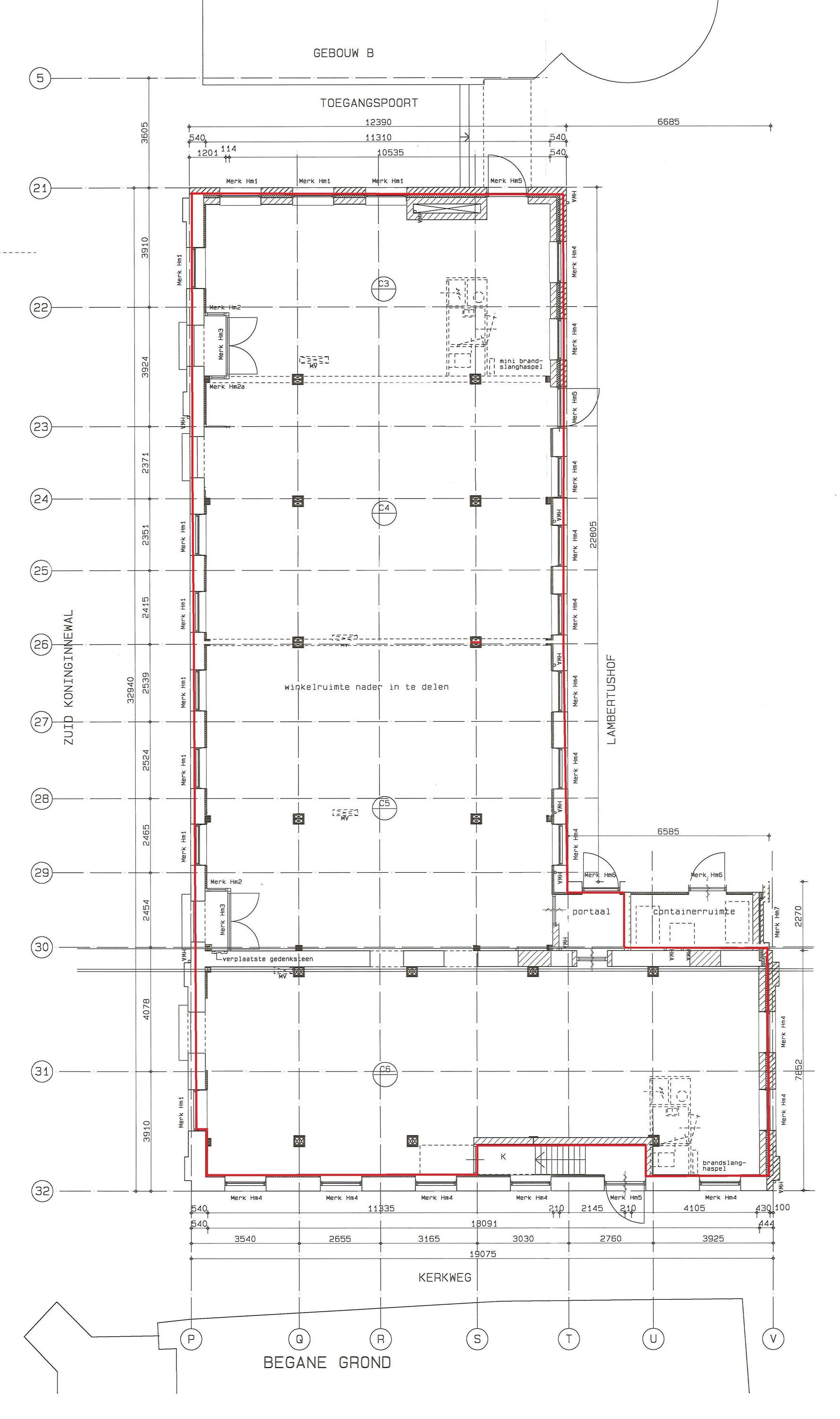
De te koop aangeboden winkel-/kantoorruimte op de begane grond bestaande uit circa 409 m² aan de Zuid Koninginnewal 45-49 te Helmond is gelegen op een toplocatie in het centrum en op loopafstand van bushalte en treinstation. Huisnummer 45 (circa 170 m²) is verhuurd aan Beter Horen en huisnummer 49 is leeg en vrij van huur en gebruik. Het gebouw is een Rijksmonument en gebouwd in 1873-1875 als Fraterhuis-School naar een ontwerp van architect H.J. van Tulder. Bovengelegen bevinden zich diverse appartementen. De omgeving kenmerkt zich door de aanwezigheid van hoofdzakelijk winkels, woningen en horeca.

Bereikbaarheid

Het object is zowel met het openbaar als met eigen vervoer goed bereikbaar. Treinstation Helmond (Eindhoven-Venlo) ligt op loopafstand en direct voor de deur is een bushalte gelegen. Via de N270 en A67 is het object per auto goed te bereiken vanuit zowel Eindhoven als Deurne. In de nabijheid zijn ruim voldoende openbare betaalde parkeermogelijkheden. Zoals parkeergarage Doorneind (470 parkeerplaatsen) op circa 190 meter afstand.

OBJECTGEGEVENS

Beschikbare oppervlakte voor de verkoop

Circa 409 m² totaal - gelegen op de begane grond

Parkeergelegenheid

Ruimschoots openbare betaalde parkeerplaatsen aanwezig in de directe omgeving.

Opleveringsniveau winkel-/kantoorruimte Zuid Koninginnewal 45 te Helmond

  • verhuurd

Opleveringsniveau winkel-/kantoorruimte Zuid Koninginnewal 49 te Helmond

  • dubbele toegangsdeur
  • meterkast met nutsvoorzieningen
  • systeemplafonds (deels)
  • verlichting middels inbouw-/opbouwarmaturen
  • hoofdzakelijk houten kozijnen voorzien van dubbele beglazing
  • achterdeur
  • cementdekvloer (deels) voorzien van vloerbedekking
  • toilet met voorportaal voorzien van fonteintje
  • pantry
  • CV-installatie met radiatoren
  • containerruimte voor gezamenlijk gebruik (eigendom niet in de koop inbegrepen)

Gemeenschappelijk

  • gebruik van containerruimte (niet te gebruiken als fietsenstalling of opslag)

Aanvaarding

Per direct.

Energielabel

De winkelruimte beschikt over het energielabel C welke geldig is tot 22-01-2036.
Hiermee voldoet het winkelpand reeds aan de overheidsdoelstellingen waarbij vanaf 2023 alle utiliteitsgebouwen minimaal een energielabel C dienen te hebben.

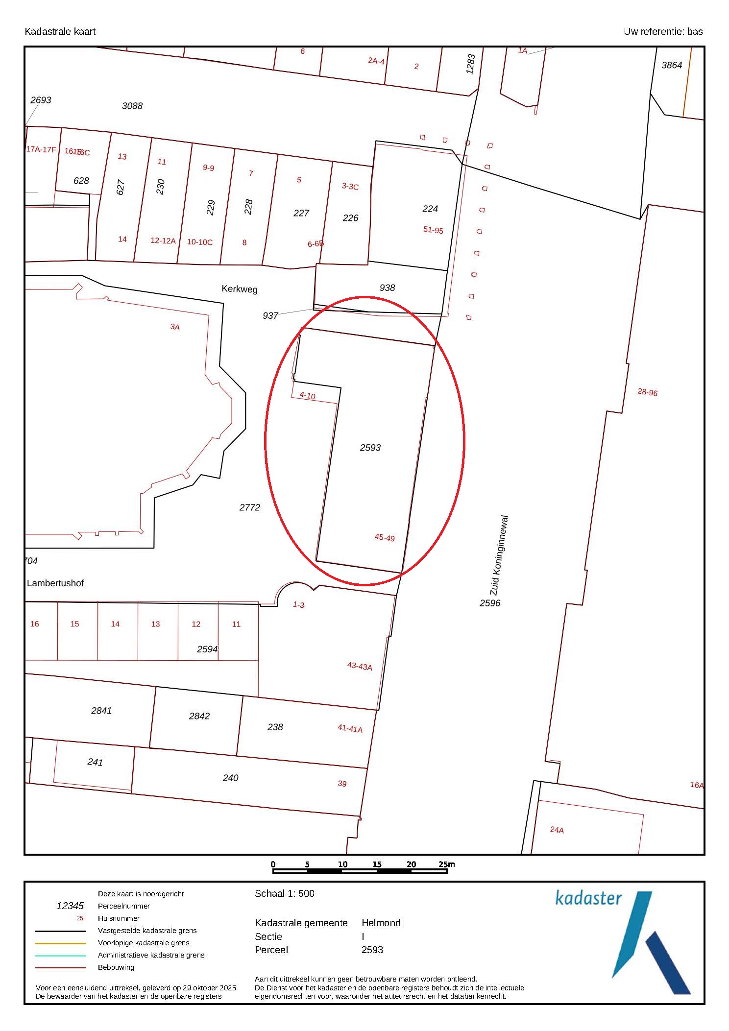
Kadastrale gegevens Zuid Koninginnewal 45-49 te Helmond

Gemeente: Helmond
Sectie: I
Perceelnummer: 2593
Oppervlakte: 466 m² (geheel perceel)
Complexnummers: 2606, A3, A4, A5 en A6

Bestemmingsplan

Het bestemmingsplan van dit object is op te vragen via één van onze bedrijfsmakelaars bij Bossers & Fitters Bedrijfshuisvesting B.V. en/of via de website van het omgevingsloket.

Bouwjaar

1875

Gerenoveerd

2001

Bijzonderheden

  • Horeca is niet toegestaan.
  • Huisnummer 45, circa 170 m², is verhuurd met een huidige looptijd tot 1 oktober 2030 met een opzegtermijn van 12 maanden.
  • Huurder betreft "Beter Horen" en de actuele huuropbrengst is € 41.123,28 per jaar te vermeerderen met B.T.W.
  • Koper is automatisch lid van VVE Lambertushof gebouw A en gebouw A/Commerciële ruimten. De jaarlijkse bijdrage hieraan betreft over 2025 € 1.709,08
  • Het gebruik van de containerruimte is gezamenlijk met Zuid Koninginnewal 43-43A te Helmond.

KOOPGEGEVENS

Koopsom

€ 1.550.000,00 kosten koper.

Notaris

Door koper nader te bepalen.

Zekerheidsstelling

10% van de koopsom te stellen bij de ondertekening van de koopovereenkomst.

B.T.W.

Er zal niet worden geopteerd voor een met B.T.W.-belaste verkoop.

Meer informatie

Wenst u meer informatie over deze beschikbare winkel-/kantoorruimte welke te koop is aan de Zuid Koninginnewal 45-49 te Helmond, neem dan vrijblijvend contact op met één van de bedrijfsmakelaars bij Bossers & Fitters Bedrijfshuisvesting B.V.

Onze bedrijfsmakelaar de heer B. Deitmers RM RT is van alle beschikbare informatie op de hoogte.

Locatie

locationAdres

Zuid Koninginnewal 45

5701 NS Helmond

Centrum van Helmond

Plan een bezichtiging

Contacteer onze bedrijfsmakelaar voor vragen over dit object of vraag een bezichtiging aan met de bedrijfsmakelaar.

Deel dit object:

* Verplicht veld